
67
URBAN RETREAT HOUSE
都心で働くふたりに、
リトリート空間を
URBAN RETREAT HOUSE
黒い焼杉調サイディングと急勾配の屋根がつくる、重厚な和モダンの佇まい。外観には存在感を、室内には心地よい余白を。忙しく働くパワーカップルが、都心で心をほどくリトリートハウスです。
- 参考価格(税込)
-
2,500万円~
(24.12坪/79.91㎡)
※あくまで参考価格になります。詳しくはお問い合わせください。
3 FEATURES
3つの特徴
-
庭で整う、日差しと緑のある家事動線
庭に面して水回りを集約し、洗濯や家事の動線を効率化。日当たりのよい庭で洗濯物を干したり、緑を眺めながら一息ついたり。共働き世帯の忙しい毎日に、効率とリフレッシュの時間をもたらします。
-
斜めの動線がつくる、広がりの錯覚
キッチンや壁の一部を斜めに配置することで、視線が自然と奥へと抜ける設計に。限られた空間に奥行きをつくりながら、家事動線も短縮。スタイリッシュさと機能性を兼ね備えた間取りで、暮らしの質が向上します。
-
地窓と吹き抜けが叶える、癒しの時間
アプローチ沿いの地窓の上部を吹き抜けにし、上からもやわらかな光が注ぐ設計に。キッチンからは庭先の植栽が視界に入り、室内にいながらも緑を感じることができます。毎日の料理や家事の時間が、ふとした癒しのひとときに変わります。
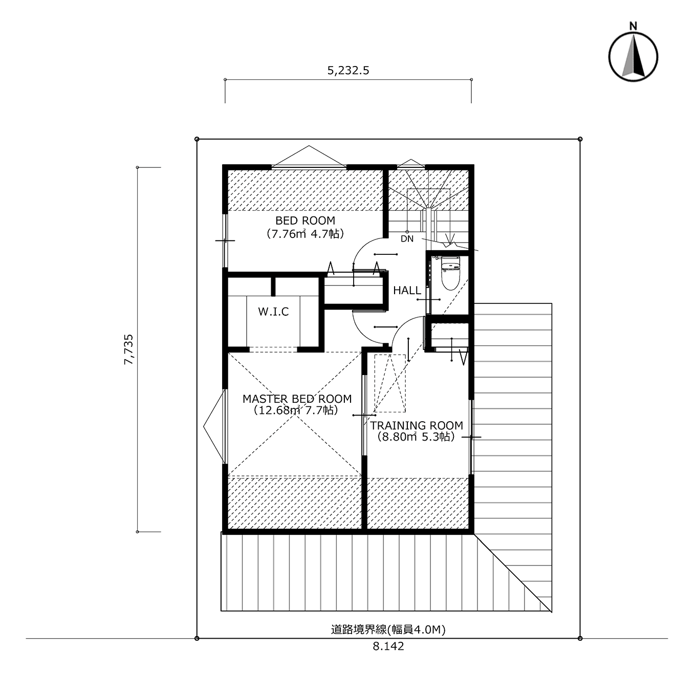
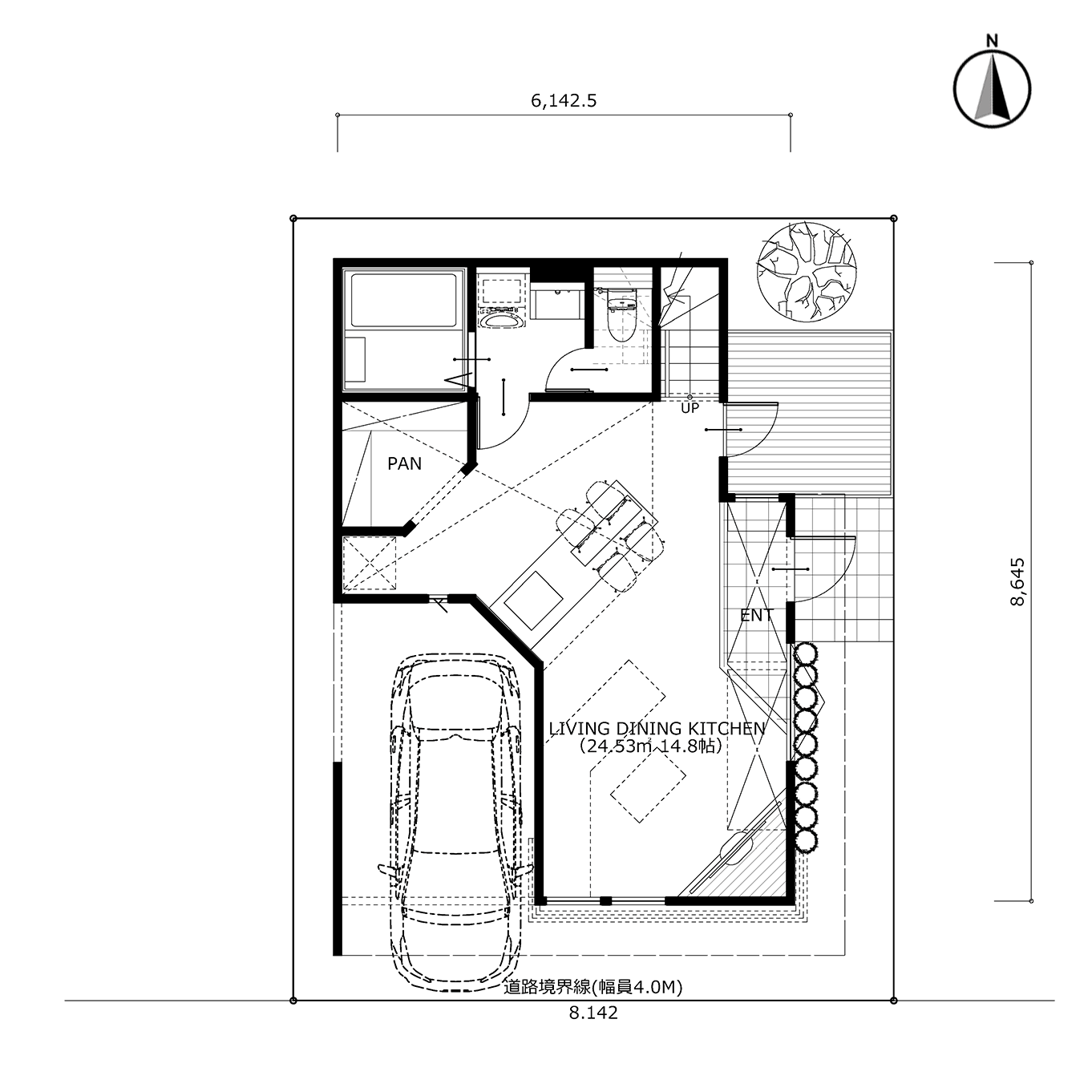
FLOOR PLAN
OUTLINE
基本情報
- 1階床面積:
- 39.44㎡
- 2階床面積:
- 40.47㎡
- 延べ床面積:
- 79.91㎡(24.12坪)
- 敷地面積:
- 86.26㎡
- 用途地域:
- 第一種中高層住居専用地域
- 建蔽率:
- 60%
- 容積率:
- 200%(道路幅員4mにより160%)
- 高度地区:
- 第二種高度地区(5m+1.25/1)
- 防火指定:
- 準防火地域
- 道路幅員:
- 4m
- 注意事項:
- 隣地離れは有効50㎝以上を確保
SPECIFICATIONS
仕様
| 構造・工法 | 在来軸組工法 |
|---|---|
| 断熱材(外周部壁) | 旭ファイバーグラス/高性能グラスウール断熱材 |
| 屋根 | メーカー名:TSUKIBOSHI 商品名:SELiOS prime/ブラック |
| 外壁 | メーカー名:KMEW 商品名:焼杉調/深炭/QFマックスチタンブラック メーカー名:KMEW 商品名:シマンフラット/ラントチタンホワイト |
| 玄関ドア・ アルミサッシ |
玄関ドア 防火仕様 メーカー名:YKKAP 商品名:ヴェナートD30/カームブラック アルミサッシ 防火仕様 メーカー名:YKKAP 商品名:エピソードⅡ防火窓GNEO/Low-Eガラス/カームブラック |
| 内装ドア・ クローゼット |
メーカー名:DAIKEN/ieria series/モスブラック柄 |
| フロアー(ホール・廊下・居室・LDK・収納) | メーカー名:東洋テックス 商品名:CANVAS/グレージュオーク柄 |
| フロアー(トイレ・洗面室) | メーカー名:朝日ウッドテック 商品名:アネックスサニタリー柄/ブラックスレート柄 |
| 階段・階段手摺 | メーカー名:朝日ウッドテック |
| 内装クロス | ベースクロス メーカー名:リリカラ 品番:LB9577 アクセントクロス メーカー名:サンゲツ 品番:TH32752 |
| キッチン | メーカー名:パナソニック 商品名:Lクラス |
| ユニットバス | メーカー名:LIXIL 商品名:AX/1616サイズ |
| 洗面化粧台 | メーカー名:LIXIL 商品名:EV |
| トイレ | メーカー名:LIXIL 商品名:ベーシアシャワートイレ |
| 備考 |
※仕様は変更になる場合がございます。