63

営む和の家

和の趣に包まれる、
営みと暮らし。

営む和の家

都内の商業地域に調和する、和モダンな3階建ての店舗併用住宅。下屋や縦ルーバー、深い軒が生む陰影が街並みに品よく馴染み、存在感を引き立てます。

参考価格(税込)

3,900万円~

(43.68坪/144.70㎡)

※あくまで参考価格になります。詳しくはお問い合わせください。

3 FEATURES

3つの特徴

  • 営みと暮らしを両立

    1階に店舗と水回りを集約した設計に。2階は25.8帖の広々としたLDKを確保。住まいと店舗を無理なく共存させます。

  • メリハリとゆとりの調和

    LDKにはベンチを、店舗部分にはカウンターを設けることで、空間にメリハリを演出。低重心や木の温もりといった和モダンのエッセンスを取り入れ、居心地の良さが感じられます。

  • 影と光の快適住まい

    西側の縦ルーバーが強い日差しを和らげ、南側の吹き抜けからはたっぷりの自然光が降り注ぐ造りに。和モダンの外観が、機能性と心地よさを両立させます。

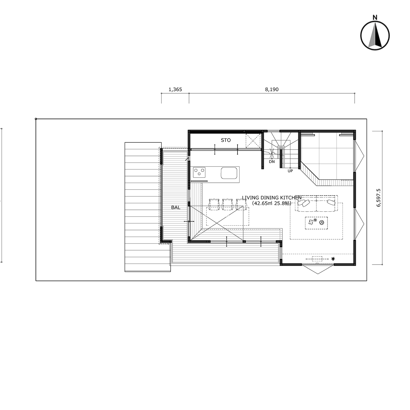
FLOOR PLAN

※図面をクリックすると拡大します。
※地域や防火仕様によって使用できない窓が含まれている場合がございます。
※3D展示場に掲載されている物件は仕様規定を基準に設計しております。性能評価書を取得する場合は間取りが変更になる可能性がございます。

OUTLINE

基本情報

1階床面積:
51.96㎡
2階床面積:
48.85㎡
3階床面積:
43.89㎡
延べ床面積:
144.70㎡(43.68坪)
敷地面積:
130.89㎡
用途地域:
近隣商業地域
建蔽率:
80%
容積率:
200%
高度地区:
第三種高度地区(10.0m+1.25/1)
防火指定:
準防火地域
道路幅員:
6m
注意事項:
隣地離れは有効50㎝以上を確保

SPECIFICATIONS

仕様

構造・工法 在来軸組工法
断熱材(外周部壁) 旭ファイバーグラス/高性能グラスウール断熱材
屋根 メーカー名:TSUKIBOSHI
商品名:SELiOS prime/ブラック
外壁 メーカー名:KMEW
商品名:シュトラール18/ QFマックスチタンブラック
玄関ドア・
アルミサッシ
玄関ドア
防火仕様
メーカー名:YKKAP
商品名:ヴェナートD30/カームブラック

アルミサッシ
防火仕様
メーカー名:YKKAP
商品名:エピソードⅡ防火窓GNEO/Low-Eガラス/カームブラック
内装ドア・
クローゼット
メーカー名:DAIKEN/hapia series/モノホワイト柄
フロアー メーカー名:朝日ウッドテック
商品名:アネックスST/メイプル柄
フロアー(トイレ・洗面室) メーカー名:朝日ウッドテック
商品名:アネックスサニタリー柄/フローライムストーン柄
階段・階段手摺 メーカー名:朝日ウッドテック
内装クロス ベースクロス
メーカー名:リリカラ
品番(番号):LB-9550

アクセントクロス
メーカー名:サンゲツ
品番:TH32164
キッチン メーカー名:クリナップ
商品名:KT
ユニットバス メーカー名:LIXIL
商品名:AX/1616サイズ
洗面化粧台 メーカー名:AICA
商品名:スマートサニタリー
トイレ メーカー名:LIXIL
商品名:ベーシアシャワートイレ
備考 ※ウッドデッキ下階が屋内の場合、ウッドデッキが屋根とみなされるため、不燃認定が取得できません。そのため、ウッドデッキは選択不可となります。(※規制のない区域等は除く)

※仕様は変更になる場合がございます。